ISERNIA – Centro di Alta Formazione all’auditorium Unità d’Italia: approvato il progetto esecutivo

Smaltimenti Sud
stampa digitale pubblicità black&barry venafro

ISERNIA – Con apposita deliberazione di giunta comunale, è stato approvato il progetto esecutivo per la realizzazione di una “Sede di Alta Formazione” che sorgerà nell’edificio secondario dell’auditorium Unità d’Italia, finanziato dal cosiddetto Bando Periferie.

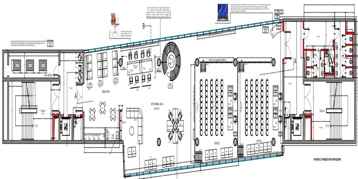
L’obiettivo è la creazione di spazi idonei e flessibili, atti a garantire lo svolgimento di attività teoriche e pratiche, scientifiche e tecnologiche, singolarmente o in forma aggregata da parte di giovani laureati, ricercatori, professionisti e imprenditori.

Spazi moderni che mirano a favorire condivisione e scambio di professionalità, idee e conoscenze, implementando creatività e possibilità di dare vita a progetti ad alto grado di innovazione.

Il progetto esecutivo della “Sede di Alta Formazione” nasce da un’idea di sviluppo sostenibile per la Città di Isernia, mediante la creazione di spazi fortemente infrastrutturati dove elaborare iniziative imprenditoriali e attività in grado di collegarsi con il mondo esterno in chiave digitale e moderna.

«Con questo atto – ha dichiarato il sindaco di Isernia, Piero Castrataro – si delinea la vocazione di una parte strutturale importante del nostro auditorium, il corpo B, che puntiamo a trasformare in un vero e proprio polo di Alta Formazione post-diploma, universitaria e post-universitaria, anche grazie a future collaborazioni con altre istituzioni, quali università, enti di formazione, ITS ed imprese.

Il nostro auspicio – ha aggiunto Castrataro – è quello di creare un luogo di confronto, condivisione e, appunto, di formazione, in grado di mettere in collegamento le preziose risorse umane di cui il nostro territorio è ricco. Una grande occasione per i nostri giovani e per Isernia, che merita di diventare sempre più competitiva nel mondo dell’innovazione, del digitale e dello sviluppo sostenibile».

Dopo l’approvazione del progetto esecutivo, il prossimo passo sarà l’indizione di una gara ad evidenza pubblica per l’affidamento dei lavori.

C.C.

© RIPRODUZIONE RISERVATA

Facebooktwittermail

PUBBLICITA’ »

assicurazioni Siravo
Colacem Sesto Campano

resta aggiornato »

WhatsApp Molise Network

seguici »

Facebooktwitteryoutubeinstagram

PUBBLICITA’ »

Colacem Sesto Campano
assicurazioni Siravo

resta aggiornato »

WhatsApp Molise Network

seguici »

Facebooktwitteryoutubeinstagram

aziende in molise »

Edilnuova Pozzilli
Agrifer Pozzilli
Bar il Centrale Venafro
error: