
ISERNIA – C’è il Decreto del Commissario ad Acta con il quale si individua ufficialmente lo stabile di località Acqua Sulfurea, ex V Settore, quale sede del Centro diurno per malati di Alzheimer.
“Ora – ha affermato il sindaco Piero Castrataro – possiamo proseguire con l’adeguamento funzionale in modo da rendere la struttura accogliente e adatta alle esigenze dei pazienti e delle loro famiglie.
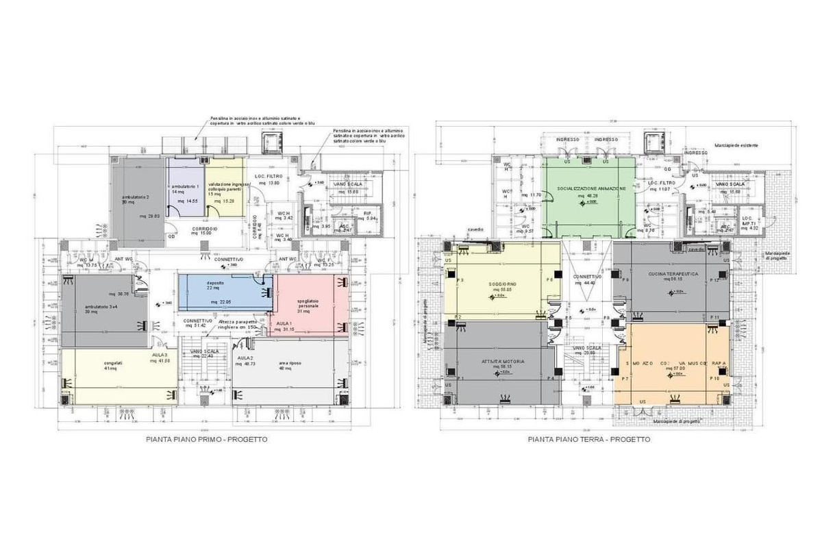
Ricordo che il progetto prevede la realizzazione di spazi destinati ad attività motorie, di socializzazione, di animazione, di stimolazione cognitiva, musicoterapia e danza, ma anche ambienti dedicati ad ambulatori ed attività di carattere sanitario. Infine, all’esterno, sarà realizzato un giardino sensoriale per il miglioramento delle condizioni psicofisiche dei pazienti.
Sono previsti, inoltre, interventi di efficientamento energetico per una gestione sostenibile della struttura, anche in chiave di contenimento dei costi.
Andiamo avanti, sempre nell’intento di offrire – ha concluso Castrataro – un servizio atteso da tempo ed indispensabile per tutti coloro che vivono, quotidianamente, le difficoltà legate alla malattia”.
© RIPRODUZIONE RISERVATA
















